RL3 – 30.20 m2

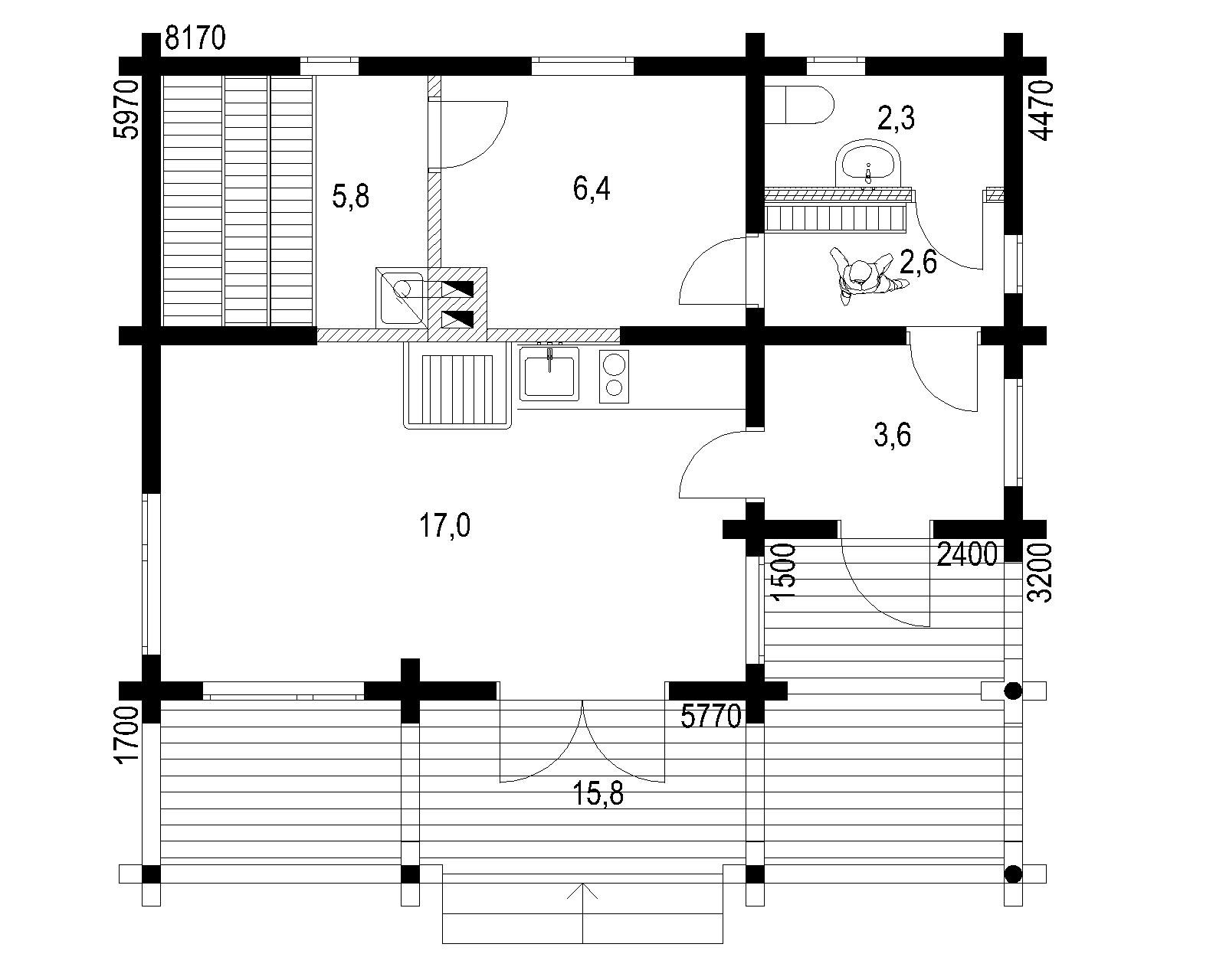
Classic round log house with kitchen – living room, (1) bathroom, sauna and terrace.

  • Floor area = 37.70 M²
  • Terrace area = 15.80 M²
  • Total area = 53.50 M²

EXPLORE MORE MODELS

Round log houses

Square log houses

Gazebo